
The project " Nomad Camp " by Achille Bonito Oliva invites pairs
of artists and architects to make proposals to be realized through
the use of standard shipping container .
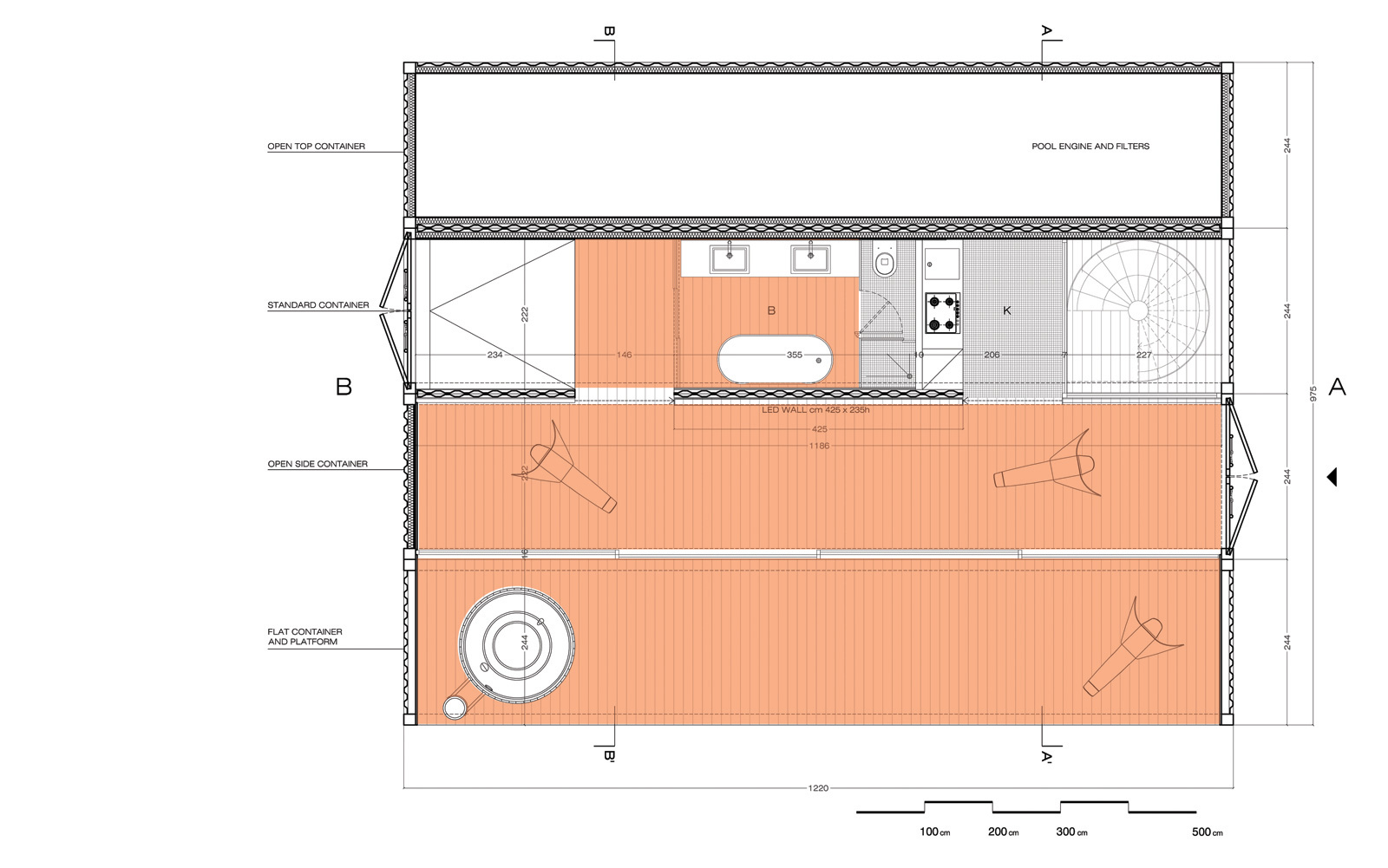
 Container Pool Villa is the proposal for a villa
with pool available in 4 standard container 12 meters long.
 The first is an open side container containing the porch , the
second one contains the open space of the fully glazed living room,
the third contains a bedroom with a large bathroom, the kitchen and
the spiral staircase that goes up on the roof, the fourth one is an
open top container that contains the pool .
 The central wall of the living room is a 2.2-meter hight and 5
meters wide Led Wall which airs on a video made by the artist Dino
Innocente that films the route taken from his study in Emilia
Romagna to the nomad camp, and that will continue to be updated
 each subsequent displacement of the traveling camp.
 The four containers can be easily transported and assembled
anywhere.
The project Parco Nomade, from the experience that FONDAZIONE VOLUME! has accumulated in the course of its years, aims to rethink the concept of public art, by relaunching through the force of art, a peripheral territory. The park extends within the Riserva Naturale della Tenuta dei Massimi, upon the green property of the Emefin society (around 40 hectares).
Il progetto "Campo Nomade" ideato da Achille Bonito Oliva
invita coppie di artisti e architetti a presentare proposte da
realizzare attraverso l'utilizzazione di moduli di container da
trasporto standard.
 Container Pool Villa è la proposta per una
villa con piscina realizzata in 4 container standard da 12
metri.
 Il primo è un open side container che contiene il portico, il
secondo contiene lo spazio aperto e completamente vetrato del
soggiorno, il terzo una camera da letto con un grande bagno, la
cucina e la scala a chiocciola che sale sul tetto, il quarto è un
open top container che contiene la piscina.
 La parete centrale del soggiorno è un Led Wall di 2,2 metri
per 5 sulla quale va in onda un video realizzato dall'artista Dino
Innocente che riprende il tragitto compiuto dal suo studio in
Emilia Romagna fino al campo nomade e continuerà ad essere
aggiornato ad ogni successivo spostamento del campo
itinerante.
 I quattro container possono essere facilmente trasportati ed
assemblati ovunque.
Il progetto Parco Nomade, partendo dall'esperienza che VOLUME! ha accumulato nel corso degli anni, si prefigge lo scopo di ri-pensare il concetto di arte pubblica, oltre quello di rilanciare, attraverso la forza dell'arte,un territorio periferico come quello di Corviale. Il parco si estende all'interno della riserva naturale della Tenuta dei Massimi, su un piano verde di proprietà della società Emefin (circa 40 ettari).